지금 구매해야
가장 저렴한 얼리버드 특가
-
1차 얼리버드
월 24,000원 정가 월 79,000원69% sold out -
한정수량 2차 얼리버드
월 30,000원 정가 월 79,000원62% -
2차 얼리버드 마감 후 정가판매
월 79,000원
커뮤니티와 함께하는업무 스킬 클래스
커뮤니티형 그룹 클래스
수강 후 우리들의 변화
👋🏻 클래스 필수 정보
- 수강 기간 1개월 수강권 중 선택
- 그룹 미션 총 7개
- 소통 커뮤니티 그룹형
- 진행방식 온라인 수업
커리큘럼
총 7개의 미션 05:21:27
-
OT상상하우스 소개글 FREE03:29 PLAY
-
1강캐드와 친해지기(LINE, ERASE, UNDO, REDO) FREE12:24 PLAY
-
2강강의전 준비하기15:55
-
3강간단한 평면도 그리기(OFFSET, FILLET, TRIM)20:39
-
4강6평 농막 평면도 그리기(LAYER, MATCHPROP, MOVE, COPY)30:06
-
5강팔각정 그리기(BLOCK, ROTATE, MIRROR)28:50
-
6강지적도 캐드파일로 만들기(SCALE, PLINE, PEDIT)24:58
-
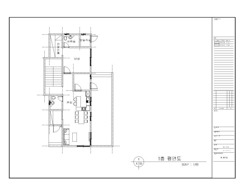
7강주택평면도 그리기 - 1 (ARRAY, EXTEND, STRETCH)47:49
-
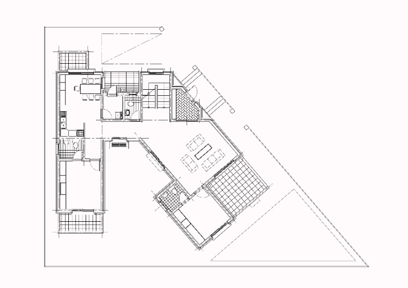
8강주택평면도 그리기 - 2 마당꾸미기(DIVIDE, MEASURE, DDPTYPE)47:08
-
9강주택평면도 그리기 - 3 해치넣기(HATCH, HATCHEDIT)45:16
-
10강주택평면도 그리기 - 5(문자, 치수넣기) - 시즌1 종강(TEXT, STYLE, DIM, DDIM, BOUNDARY)44:53
클래스 소개

상상하우스 대갈박도사 서호상 입니다.
AUTOCAD의 명령어를 어떻게 하면 더
효율적으로 사용 할까 라는 방법을 알고 싶으시다면
상상하우스가 클래스U에 업로드 하는 AUTOCAD 2D과정
- 시즌1(기초편)을 들으시면 되고,
상상하우스의 AUTOCAD 2D과정 - 시즌1(기초편)을 공부하시다
특정 명령어에 대한 공부를 좀 더 구체적으로 하고 싶으시다면
네이버 카페 대갈박도사의 상상하우스를 방문하시어
AUTOCAD강의를 들이신다면 더 없이 감사하겠습니다.
현재 네이버 카페 대갈박도사의 상상하우스 AUTOCAD강의에
명령어 위주의 대산 설명을 하는 강의를 업로드 진행 중 입니다.
대갈박 도사의 상상하우스 : 네이버 카페 (naver.com)
OT - Welcome SANGSAGN HOUSE
1강 캐드와 친해지기
2강 강의전 준비하기
3강 간단한 평면도 그리기

4강 6평 농막 평면도 그리기 (OFFSET, FILLET, TRIM)

5강 팔각정 그리기 (LAYER, MATCHPROP, MOVE, COPY)

6강 지적도 캐드파일로 만들기 및 지적도
- 드론항공사진합성 (SCALE, PLINE, PEDIT)

7강 주택평면도 그리기 - 기본도면 그리기
(ARRAY, EXTEND, STRETCH)

8강 주택평면도 그리기
- 마당꾸미기 (DEVIDE, MEASURE, DDPTYPE)

9강 주택평면도 그리기 - 해치넣기 (HATCH, HATCHEDIT)

10강 주택평면도 그리기
- 문자와 치수넣기 (TEXT, STYLE, DIM, DDIM, BAUNDARY)

저는 1997년도 대학을 입학해서 건축을 전공하였습니다.
대학을 다니면서 전공 공부도 하였지만,
컴퓨터를 어떻게 쓰면 건축을 함에 있어
더 잘 활용 할 수 있는 지에 대한 공부를
전공 과목보다 더 열심히 하였던 것 같습니다.

우리는 실생활에서 도면을 그려야 하는 많은 일을 격을 수 있습니다.
가구를 제작한다 거나, 캠핑카를 만든다거나, 주택을 설계 한다 거나
하는 수많은 일에서 도면을 통해 자신의 머릿속 생각을 표현합니다.
이러한 많은 생각을 AUTOCAD를 활용함으로써 표현 할 수 있습니다.
건축가를 꿈꾸든, 가구 디자이너를 꿈꾸든
자기 생각을 표현하는 데 있어 훨씬 더 많은
자유와 편리함을 얻게 될것입니다.
저는 20년 가까운 사회생활을 하면서
대학에서 공부한 건축을 컴퓨터를 활용해서
실전에 사용해 보았던 많은 것들을
기록하고 여러분들과 공유할 기회를 갖고자 합니다.

이 수업을 들으실 분들께 드릴 말씀이 있습니다.
첫 번째는 2030세대분들께 들려주고 싶은 말이 있습니다.
10%의 노력과 90%의 감각이면 충분해.
그렇지만 90%의 노력없이는 90%의 감각도 없어.
20년 가까이 사회 생활을 하다보니 문득 그런 생각이 들더군요.
점점 더 나를 발전시키기 위해
노력 할 시간이 부족해 진다는 생각이 들더군요.
그러면서 나의 사회 생활을 다시 한번 되돌아 보았습니다.
대학을 입학하고 전공과목과 전공에 필요한
컴퓨터 공부를 열심히 하였습니다.
하지만 사회생활을 시작하면서 느낀 것은
대학을 나왔으면서도 아무것도 모른다는 것을 깨달았습니다.
또다시 나를 발전시키기 위한 부단한 노력을 하였습니다.
그리고 30대가 되어 실력이 생겼어도
선배들에 비해 모르는것이 여전히 많아 배우면서
실력을 계속 쌓아 나갔습니다.
40대가 되어서는 30대의 나의 모습이 태엽 시계의 톱니바퀴 중에
하나였다는 것을 깨달았습니다.
그리고 나는 나의 일을 함에 있어 상황 상황에 맞게
감각적으로 일을 처리 할 줄 알아야 하는 것이
더 중요할때가 많아졌다는 것 또한 깨달았습니다.
물론 나의 20대, 30대 시절의 노력이 없었다면
이러한 감각도 생기지 않았을꺼란 생각도 들었습니다.
그래서 우리는 40대를 불혹이라 하는 것입니다.
-불혹이라는 말은 세상일에 정신을 빼앗겨 갈팡질팡하거나
판단을 흐리는 일이 없게 되었음을 뜻합니다.-

두번째는 모든 분들께 드리고 싶은 말씀이 있습니다.
모르는 버스를 타는 두려움, 그리고 호기심!
이것은 어떤 노래의 한 구절 입니다만
저 또한 이런 느낌이 든 적이 있어서 말씀 드립니다.
처음 해외 여행을 갔을때 버스를 타고 목적지로 향하였습니다.
모르는 버스를 타는 두려움과 호기심이 생기더군요.
물론 목적지는 친구들이 이야기 해준 터라 지역명은 알고 있었지만
처음 보는 도시 풍경과 처음 보는 자연 풍경으로 가득하더군요.
그렇습니다.
세상 누구든 처음 하는 것에는 두려움과 호기심이 생깁니다.
그러한 두려움을 이겨내고, 호기심을 갖고 모르는 것을
하나 하나 알아 갈 수 있는 것을 우리는 도전 정신이라 합니다.
여러분들께서도 이러한 도전정신을 갖고,
끝까지 혼신의 힘을 다해 열심히 함께 공부해주시길 바라겠습니다.
저와 함께 시작해봅시다!
클래스는 이렇게 진행돼요.
결제 직후, 커뮤니티에 초대해드립니다. 커뮤니티에 가입 후 같은 기수의 사람들과 소통해보세요.
그룹 미션 7개를 드립니다.
내가 원하는 시간에, 원하는 장소에서 미션 완료 후 커뮤니티에 인증하면 완료!
💪 필독 장학금 혜택 안내드려요.
커뮤니티에서 함께한
클래스유 회원들의 리뷰
안녕하세요?
골든보이 호상입니다.
LG건설 근무
현대연합건축사사무소 근무
극동건설 근무
등록을 서두르세요!
그룹은 인원이 제한되어 있습니다.
이건 어때요?
고객센터
해결되지 않는 문제점이 있나요?
전문 상담사가 함께 고민해드릴게요!
